Villa a schiera in vendita

Sedriano
€ 339.000
Prezzo aggiornato
4 locali 4 locali
182 Mq 182 Mq
2 bagni 2 bagni

Villa a schiera in vendita

Sedriano

Descrizione annuncio

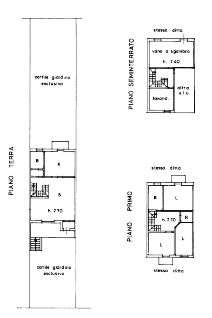
VILLA A SCHIERA – Posizionata al confine con Vittuone, perfetta per chi cerca tranquillità e comfort.

L’abitazione è organizzata su due livelli abitativi, oltre a cantina e mansarda.
L'accesso principale avviene tramite un accogliente terrazzino che conduce direttamente al soggiorno. Al piano troviamo inoltre il primo bagno finestrato, dotato di doccia, e la cucina abitabile, servita da un pratico balcone.

Al piano primo si sviluppa la zona notte così composta: camera matrimoniale, accessoriata di balcone, due camerette e il secondo bagno finestrato, anch’esso dotato di doccia. Presente al piano anche un pratico ripostiglio.

Al piano superiore è presente una pratica mansarda che offre un ambiente versatile e ben sfruttabile, ideale come locale hobby, studio o area relax.

Completa la soluzione la taverna con accesso diretto al box e al giardino privato, perfetto per trascorrere momenti di relax all’aperto.

Recentemente sono stati effettuati lavori di riqualificazione energetica quali cappotto esterno e impianto fotovoltaico con batterie di accumulo.

CERTIFICAZIONE ENERGETICA IN FASE DI RILASCIO

Mostra tutto

Nelle vicinanze

Trasporto pubblico Trasporto pubblico
Vittuone-Arluno
Vittuone-Arluno
1,4 Km
Via Magenta (Sedriano)
Via Magenta (Sedriano)
640 m
Via Milano (Vittuone)
Via Milano (Vittuone)
820 m
Ricariche auto elettriche Ricariche auto elettriche
Eneldrive McDonald's Sedriano
1,1 Km
Rogorotto Verga | EnelX
1,7 Km
Arluno Fanin | EnelX
1,7 Km
Arluno Filanda | EnelX
2,1 Km
Arluno Matteotti | EnelX
2,6 Km
Scuole Scuole
Scuole
430 m
Liceo Scientifico-Teconologico - ITIS E. Alessandrini
530 m
Scuola Elementare
1,1 Km
Scuola elementare istituto Luigi Perlasca
2,8 Km
Scuola elementare Aldo Moro
2,9 Km
Farmacia Farmacia
Comunale
820 m
Farmacia Comunale di Vittuone
1,9 Km
Iper Farma
2,0 Km
Farmacia Moderna
2,2 Km
Farmacia della fontana
2,4 Km
Supermercati Supermercati
Superdì
640 m
Bennet
1,4 Km
MD Discount
1,8 Km
Iper Vittuone
2,0 Km
Coop
2,1 Km
Negozi Negozi
Stile Libero
650 m
Panipast 2
1,3 Km
OVS
1,4 Km
DEN
1,9 Km
Tally Weijl
1,9 Km
Bar Bar
Bar
420 m
Al Palo
1,3 Km
Il Pacchero
1,7 Km
Bar Milano
2,0 Km
Cefra
2,4 Km
Ristoranti Ristoranti
Circolo Culturale Un Punto Macrobiotico
410 m
Ristorante - Pizzeria "All'Angolo"
1,0 Km
Trattoria Mediterranea
1,2 Km
Pizzeria Dina
1,2 Km
Ristoranti
1,5 Km
Mostra tutto

Caratteristiche

Rif.:
61133648
Piano:
Su più livelli di 4
Totale piani:
4
Box:
1
Balconi:
4
Camere da letto:
3
Mostra tutto
Prezzo Prezzo
€ 339.000
Rata mutuo Rata mutuo
€ 1.600 / mese
Spese annue Spese annue
€ 0
Proponi il tuo prezzoProponi il tuo prezzo

Classe Energetica

G
G
G
G
G
G
G
G
G
Anno di costruzione:
1990
Riscaldamento:
Autonomo
Tipo impianto:
A radiatori
Tipo alimentazione:
Metano

Prezzo ridotto di €1 (6%%)

Ti interessa visionare l'immobile?

Fissa un appuntamento  Fissa un appuntamento

Richiedi informazioni

Clicca su Leggi per aprire l'informativa
* Questi campi sono obbligatori

Calcola il tuo mutuo

Semplice e senza impegno
Anticipo

( % )
Mutuo

( % )

pochi semplici passi

inserisci i tuoi dati
Questionario completato
Grazie per aver richiesto un appuntamento senza impegno con un nostro Consulente del Credito e Assicurativo.

Hai inserito correttamente tutti i dati necessari e a breve riceverai una e-mail con un link da convalidare per inviare i tuoi dati.
Affiliato
Primarosa Sas
Via De Amicis, 28 20018 Sedriano (MI)

Il nostro staff


  • Luca Blengino
    Affiliato

  • Elisabetta Parini
    Affiliata

  • Massimo Garavaglia
    Collaboratore

  • Chiara De Pascali
    Coordinatrice
Via De Amicis, 28 20018 Sedriano (MI)
Zona: Sedriano - Roveda
Mostra su mappa
Orari: 09.00 - 12.30 / 14.30 - 20.00
Affiliato
Primarosa Sas
Via De Amicis, 28 20018 Sedriano (MI)

2025 Tecnocasa Franchising S.p.A. - P. IVA 08365160152 - Via Monte Bianco 60/A 20089 Rozzano (MI). Ogni agenzia ha un proprio titolare ed è autonoma. Privacy policy | Policy utilizzo | Cookie policy