Villa a schiera d'angolo in vendita

Sedriano, Via Giovanni Amendola
€ 329.000
4 locali 4 locali
155 Mq 155 Mq
2 bagni 2 bagni

Villa a schiera d'angolo in vendita

Sedriano, Via Giovanni Amendola

Descrizione annuncio

Ampia casa semi-indipendente con giardino su tre lati – ottimo potenziale

In tranquilla zona residenziale, nelle immediate vicinanze del centro e delle scuole, proponiamo ampia casa semi-indipendente degli anni ’70, libera su tre lati e circondata da giardino privato, ideale per chi desidera spazi generosi e la possibilità di personalizzare la propria abitazione.

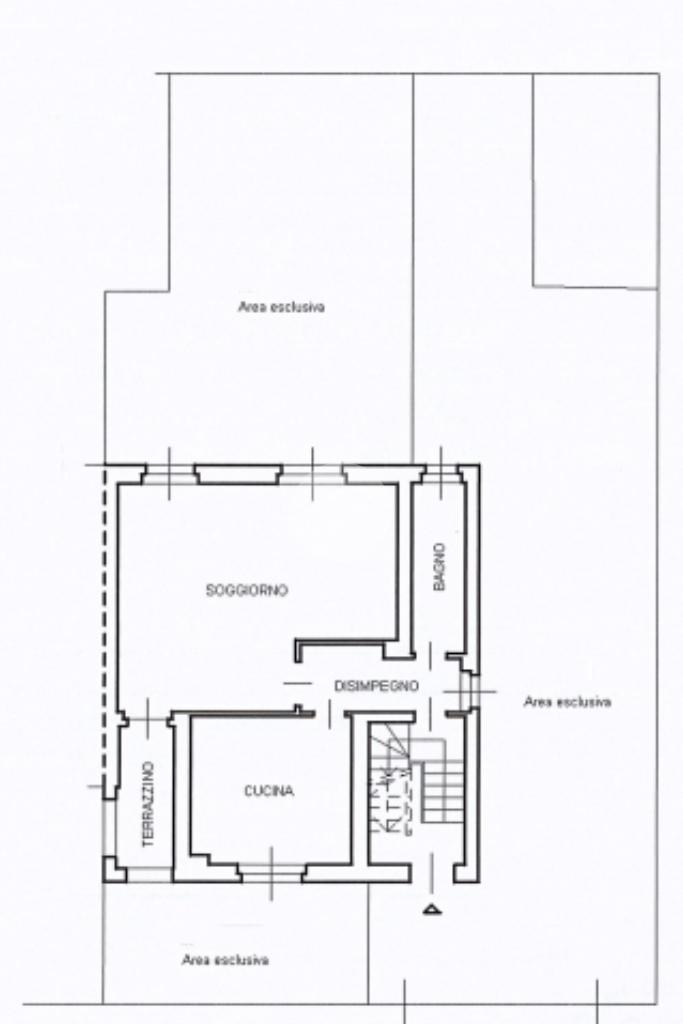
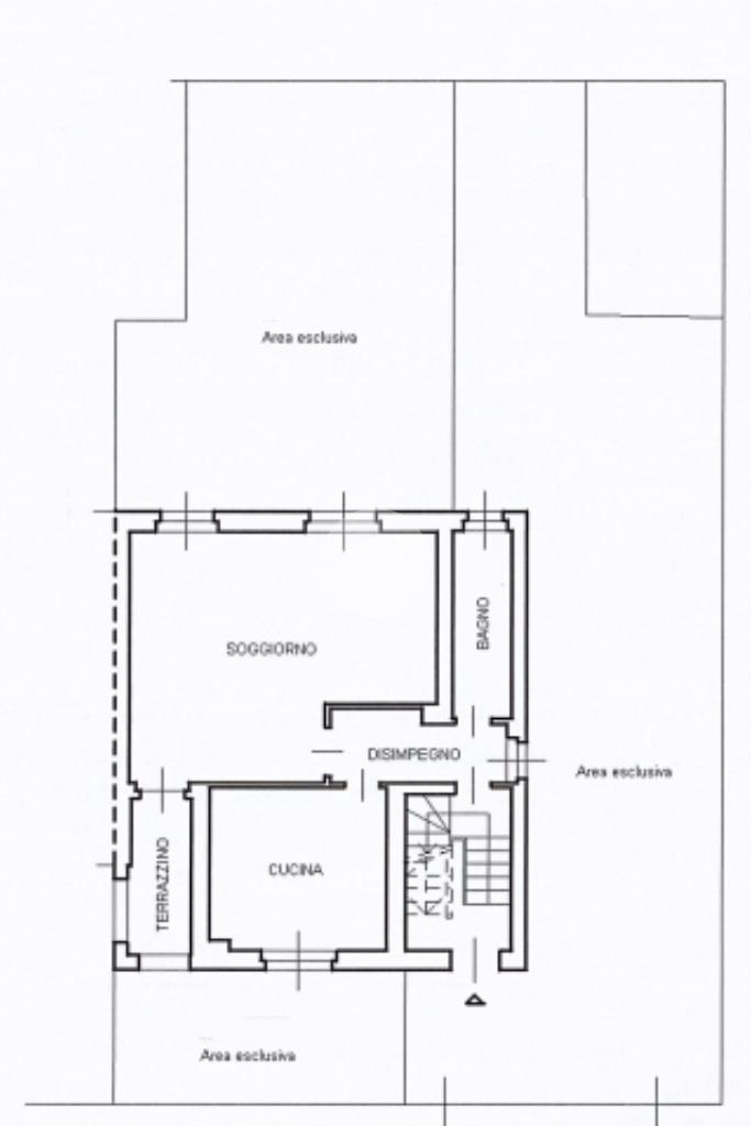
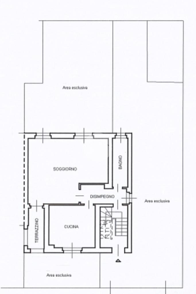
L’immobile si sviluppa su due livelli abitativi, oltre a un’ampia cantina rifinita al piano seminterrato.

Al piano rialzato, il corridoio d’ingresso conduce a tutti gli ambienti della zona giorno: il soggiorno doppio, con accesso a un ampio terrazzino, ospita comodamente sia la zona salotto sia la zona pranzo. La cucina è spaziosa e abitabile, mentre un primo bagno finestrato completa il piano.

Al piano primo si sviluppa la zona notte, composta da tre camere da letto di generose dimensioni, servite da balcone e terrazzino, oltre al secondo bagno finestrato.

Il piano seminterrato, con ampia cantina rifinita, rappresenta uno spazio versatile ideale come locale hobby, lavanderia o deposito.

L’accesso al giardino privato, disposto sui tre lati dell’abitazione, è possibile sia dall’ingresso principale, sia dal piano seminterrato. Completa la proprietà un box singolo.

L’abitazione si presenta da ristrutturare, caratteristica che rappresenta un’interessante opportunità per ridistribuire gli spazi interni e valorizzare le ampie metrature, realizzando una casa perfettamente su misura per le proprie esigenze.

Soluzione ideale per famiglie o per chi è alla ricerca di indipendenza, spazi esterni

Mostra tutto

Nelle vicinanze

Trasporto pubblico Trasporto pubblico
Vittuone-Arluno
Vittuone-Arluno
2,1 Km
Via Fagnani (Sedriano)
Via Fagnani (Sedriano)
480 m
Via Magenta (Sedriano)
Via Magenta (Sedriano)
700 m
Ricariche auto elettriche Ricariche auto elettriche
Eneldrive McDonald's Sedriano
980 m
Rogorotto Verga | EnelX
1,7 Km
Arluno Fanin | EnelX
2,3 Km
Arluno Filanda | EnelX
2,7 Km
Cornaredo Vittorio Veneto | EnelX
2,9 Km
Scuole Scuole
Scuole
280 m
Liceo Scientifico-Teconologico - ITIS E. Alessandrini
1,3 Km
Scuola Elementare
1,8 Km
Scuola elementare istituto Luigi Perlasca
2,2 Km
Farmacia Farmacia
Comunale
450 m
Farmacia europea
1,9 Km
Farmacia Caiezza
2,3 Km
Farmacia Comunale di Vittuone
2,5 Km
Iper Farma
2,5 Km
Supermercati Supermercati
Bennet
880 m
Superdì
1,4 Km
Euro Spin
1,4 Km
Penny Market
1,4 Km
COOP
1,8 Km
Negozi Negozi
Stile Libero
580 m
OVS
860 m
Negozi
1,3 Km
Panipast
2,0 Km
Panipast 2
2,0 Km
Bar Bar
Bar
630 m
Il Pacchero
1,6 Km
Al Palo
1,9 Km
ChocoLù Bar
1,9 Km
La Piazzetta
2,1 Km
Ristoranti Ristoranti
Circolo Culturale Un Punto Macrobiotico
380 m
Trattoria Mediterranea
1,2 Km
Rainbow
1,4 Km
Ristorante Pizzeria L'Antica
1,7 Km
Ristorante - Pizzeria "All'Angolo"
1,7 Km
Mostra tutto

Caratteristiche

Rif.:
61188836
Piano:
Su più livelli di 2
Totale piani:
2
Box:
1
Balconi:
1
Camere da letto:
3
Mostra tutto
Prezzo Prezzo
€ 329.000
Rata mutuo Rata mutuo
€ 1.569 / mese
Spese annue Spese annue
€ 0
Proponi il tuo prezzoProponi il tuo prezzo

Classe Energetica

G
G
G
G
G
G
G
G
G
EP globale non rinnovabile:
313.44 kW h/m² anno
EP globale rinnovabile:
1.32 kW h/m² anno
EP invernale del fabbricato:
EP estiva del fabbricato:
Anno di costruzione:
1970
Riscaldamento:
Autonomo
Tipo impianto:
A radiatori
Tipo alimentazione:
Metano

Ti interessa visionare l'immobile?

Fissa un appuntamento  Fissa un appuntamento

Richiedi informazioni

Clicca su Leggi per aprire l'informativa
* Questi campi sono obbligatori

Calcola il tuo mutuo

Semplice e senza impegno
Anticipo

( % )
Mutuo

( % )

pochi semplici passi

inserisci i tuoi dati
Questionario completato
Grazie per aver richiesto un appuntamento senza impegno con un nostro Consulente del Credito e Assicurativo.

Hai inserito correttamente tutti i dati necessari e a breve riceverai una e-mail con un link da convalidare per inviare i tuoi dati.
Affiliato
Primarosa Sas
Via De Amicis, 28 20018 Sedriano (MI)

Il nostro staff


  • Luca Blengino
    Affiliato

  • Elisabetta Parini
    Affiliata

  • Massimo Garavaglia
    Collaboratore

  • Chiara De Pascali
    Coordinatrice
Via De Amicis, 28 20018 Sedriano (MI)
Zona: Sedriano - Roveda
Mostra su mappa
Orari: 09.00 - 12.30 / 14.30 - 20.00
Affiliato
Primarosa Sas
Via De Amicis, 28 20018 Sedriano (MI)

2026 Tecnocasa Franchising S.p.A. - P. IVA 08365160152 - Via Monte Bianco 60/A 20089 Rozzano (MI). Ogni agenzia ha un proprio titolare ed è autonoma. Privacy policy | Policy utilizzo | Cookie policy